- Novidade
- Destaque
- Comprar
Vivenda Térrea T3
Almada > Charneca Da Caparica E Sob...
650 000€
93,90 m²
Mais detalhes
- Ref.
- 00426
- Imóvel
- Vivenda Térrea
- Quartos
- 3
- WC
- 2
- Garagem
- 1
- Área útil
- 93,90 m²
- Área do terreno
- 320,26 m²
- Área bruta
- 123,52 m²
- Distrito
- Setúbal
- Concelho
- Almada
- Freguesia
- Charneca Da Caparica E Sobreda
- Ano de construção
- 2026
- Certificado energético

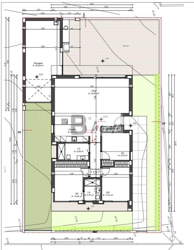
Descrição
Moradia Térrea V3 em construção.
Lote com 326,25 m2 de terreno e 93,90 m2 de área útil.
Esta moradia apresenta 3 quartos com roupeiros, sendo 1 deles suíte e 2 WCs com loiças sanitárias suspensas.
Sala e cozinha em Openspace, cozinha equipada com Máquina lavar Louça, combinado, forno, placa de indução e Exaustor.
Garagem com 25,04 m2 com zona técnica e zona de lavandaria.
Espaço exterior com jardim, Churrasqueira e lavatório, onde poderá usufruir de momentos de convívio em família.
Como equipamentos a moradia apresenta:
-Alarme, videovigilância, domótica de 2 estores e 2 luzes com controlo á distância;
-Portão de acesso à garagem automatizado;
-Aquecimento de águas sanitárias por termossifão com depósito de capacidade de 300l;
- Pré- instalação de ar condicionado.
- Ventilação Mecânica Controlada
- Possibilidade de construção de piscina, pelo valor de 20.000,00€ acrescido ao valor do imóvel.
De fácil acesso á A33
Previsão da conclusão da obra entre julho e Setembro de 2026.
- Ideal para um pronto pagamento,
- Tem decisão prévia da C. M. Seixal para construção.
- Após construção, será emitida a licença de utilização .
- O construtor fará o depósito da Ficha Técnica de Habitação na C.M. Seixal, irá registar o Modelo 1 das finanças, teremos a caderneta predial e fará o pedido de Direito de Preferência.
- Nesta fase, poderá ser escriturada sem financiamento.
- Para escriturar com financiamento, só após a divisão da coisa comum da conservatória.
Fotos meramente indicativas do tipo de acabamentos e materiais utilizados.
Características
- Pré-Instalação Ar Condicionado
- Alarme
- Cozinha equipada
- Estores Eléctricos
- Exaustor
- Forno
- Máquina de Lavar Louça
- Piso Radiante
- Placa de Indução
- Portão Eléctrico
- Roupeiros
- Vídeo Porteiro
- Combinado
- Microondas
- Painéis solares
- Piscina
- Garagem
- Suite
- Churrasqueira
- Auto-Estrada
- Transportes públicos
Divisões
Piso ( --
| Divisão | Área útil |
|---|---|
| Sala | 36,53m² |
| Cozinha | 9,73m² |
| Quarto | 9,03m² |
| Quarto | 11,23m² |
| Quarto - suite | 13,45m² |
| WC | 5,68m² |
| WC - suite | 3,97m² |
| Hall | 3,92m² |