- Novidade
- Destaque
- Comprar
Apartamento T1
Almada > Charneca Da Caparica E Sob...
425 000€
108,00 m²
Mais detalhes
- Ref.
- 00432
- Imóvel
- Apartamento
- Quartos
- 1
- WC
- 1
- Garagem
- 1
- Área útil
- 108,00 m²
- Área do terreno
- 0,00 m²
- Área bruta
- 108,00 m²
- Distrito
- Setúbal
- Concelho
- Almada
- Freguesia
- Charneca Da Caparica E Sobreda
- Ano de construção
- 2026
- Certificado energético

Descrição
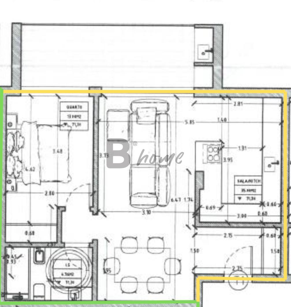
Apartamento T1 com arrecadação e parqueamento na Quinta de Sta. Teresa - Charneca de Caparica
Apresentamos este apartamento T1, atualmente em fase de construção, com previsão de conclusão em Maio de 2026 e escritura em final de junho de 2026.
Localizado na tranquila Quinta de Sta. Teresa, na Charneca de Caparica., este apartamento oferece:
1 Sala com cozinha em open space com acesso à varanda e churrasqueira.
Cozinha Totalmente Equipada com combinado, placa, forno, exaustor, micro-ondas, Máquina de lavar roupa e Máquina de lavar loiça
1 Quarto, com roupeiro.
1 WC completo, com poliban e resguardo de duche
1 Lugar de parqueamento
1 Arrecadação
Interiores e Acabamentos:
Tetos falsos em gesso cartonado com sancas para cortinados
Pavimento flutuante nos quartos, hall e sala
Portas interiores lacadas a branco com puxadores em inox
Porta de entrada de alta segurança revestida a madeira
Roupeiros embutidos com portas de correr e interior em Linho Cancun
Conforto e Eficiência:
Caixilharia em PVC com classificação para clima severo
Vidros duplos
Estores térmicos elétricos em alumínio
Aspiração central completa
Ar condicionado na sala e quartos
Painel solar termossifão de 200L
Sistema de vídeo porteiro
Fotos meramente indicativas do tipo de acabamentos e materiais utilizados.
Inserido numa zona calma e em crescimento, próximo de comércio, serviços, escolas e transportes públicos.
Excelentes acessos às principais vias (A33, A2 e IC20), garantindo facilidade nas deslocações a Lisboa e às praias da Costa da Caparica.
Características
- Ar Condicionado
- Aspiração central
- Combinado
- Cozinha equipada
- Exaustor
- Forno
- Máquina de Lavar Louça
- Máquina de Lavar Roupa
- Piso Flutuante
- Placa de Indução
- Poliban
- Porta Alta Segurança
- Roupeiros
- Vídeo Porteiro
- Vidros Duplos
- Arrecadação
- Parqueamento
- Varanda
- Churrasqueira
- Áreas de lazer infantil
- Escola
- Farmácia
- Hipermercado
- Posto de combustível
- Transportes públicos
Divisões
Piso ( --
| Divisão | Área útil |
|---|---|
| Sala | 35,00m² |
| Cozinha | - |
| Quarto | 12,00m² |
| WC | 5,00m² |